找回密码
 加入我们

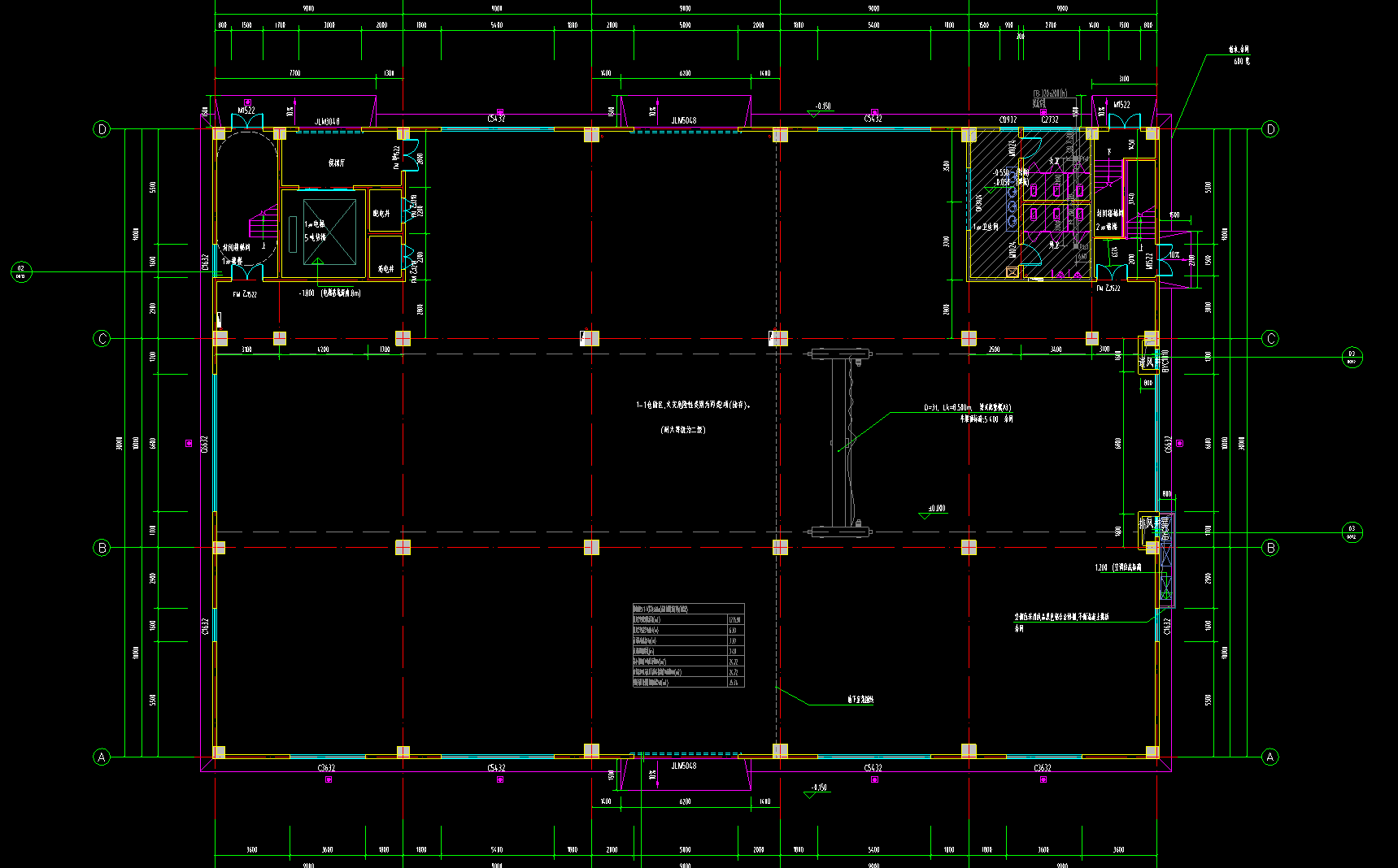
仓储物流项目一期建设项目-1#楼

[复制链接]
A860072630 发表于 7 天前 | 显示全部楼层 |阅读模式
01.png

02.png

03.png

本站各类资源下载,请加微信A860072630

QQ|Archiver|手机版|爱出图

GMT+8, 2026-3-22 00:10

Powered by Discuz! X3.5

© 2001-2026 Discuz! Team.

快速回复 返回顶部 返回列表